

























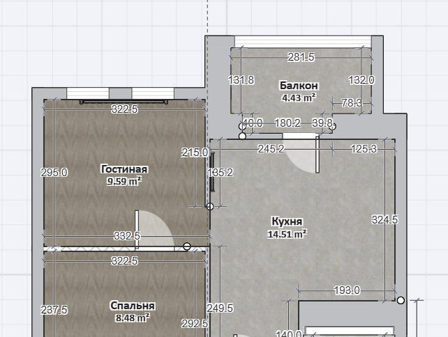
1-к кв. Ростовская область, Ростов-на-Дону Измаильский пер., 39а (43.0 м²)
Продается светлая и просторная однокомнатная квартира в новом доме, построенном в 2023 году. Общая площадь квартиры — 43 кв. м, жилая площадь — 18.31 кв. м, площадь кухни — 14.2 кв. м. Квартира расположена на 8 этаже 14-этажного дома. Высокие потолки — 3 метра, создают ощущение простора и комфорта. Из окон открывается вид на улицу, а наличие лоджии добавляет дополнительное пространство для отдыха.
Квартира без ремонта, но с отштукатуренными стенами, готовой электрикой и коммуникациями, что дает вам возможность оформить интерьер по своему вкусу и создать уютное пространство для жизни, есть дизайн проект, в стоимость включен.
Также в стоимость квартиры включены все материалы для отделки и ремонта (от наливных полов до плитки с кварцвинилом) + сантехника.
Планировка квартиры предусматривает совмещенный санузел, что удобно для ежедневного использования.
Дом оборудован современным пассажирским лифтом и подземной парковкой, поэтому ваши передвижения и безопасное хранение автомобиля будут максимально комфортными. Новый дом гарантирует отличное состояние всех коммуникаций и инженерных систем.
Район с хорошо развитой инфраструктурой: в шаговой доступности расположены школы, детские сады и магазины, что делает его идеальным для семей с детьми и людей, ценящих удобство в повседневной жизни. Хорошая транспортная доступность позволяет быстро добраться до других районов города.
Прямая продажа от собственника. В приоритете пишите, пожалуйста, в сообщении.
Особенности
Другие однокомнатные квартиры
1-комнатная квартира: Ростов-на-Дону, Днепровский переулок, 117с1 (45 м²)
1-к кв. Ростовская область, Ростов-на-Дону ул. Нансена, 103/1/1 (38.0 м²)
Студия Ростовская область, Ростов-на-Дону ул. Мечникова, 41/53 (33.0 м²)
Студия Ростовская область, Ростов-на-Дону ул. Мечникова, 41/53 (28.0 м²)
Последние добавленные апартаменты
3-к кв. Ростовская область, Ростов-на-Дону Батуринская ул., 13/14 (52.0 м²)
Студия Ростовская область, Ростов-на-Дону пер. Андреева, 9/4 (22.0 м²)
2-к кв. Ростовская область, Ростов-на-Дону Благодатная ул., 168/1 (56.0 м²)
1-к кв. Ростовская область, Ростов-на-Дону Ворошиловский просп., 60 (43.0 м²)
О нас говорят
Хорошая услуга «Личный помощник». За вами закрепляют менеджера, который подбирает для вас варианты, помогает с подписанием договора и проверкой квартиры. Константин оперативно отвечал на наши вопросы и подстраивался под возникающие в ходе поиска требования.
Ins Fairy
Нашел себе отличную квартиру в Мск на Локалс. В этот раз пользовался услугой Личный помощник; Каждый день мне присылали варианты и по моим ответам уточняли мои критерии. В итоге выбрали прямо то, что мне было надо!
Ilya Malov
Отличный сервис! Нужный вариант подобрали уже на следующий день после обращения. Документы с арендодателем я подписала в конце той же недели и сразу переехала. Квартира после ремонта, все новое, я — первый арендатор, до метро 15 минут пешком. Это потрясающе!
Maria Levkina
Поиски квартиры заняли ровно неделю, Андрей проверял все варианты и составлял подробное описание. Так же оказал помощь при подписании договора. И вот теперь, я снимаю квартиру без комиссии, от собственника, с хорошим ремонтом, в новом доме по приемлемой цене.
Dmitry Kovtun
Клиентоориентированность — на высшем уровне. И форма связи любая.. мне было удобно общаться через почту — не проблема: в будни и даже в выходные, и днем и ночью — постоянно на связи) В какой-то момент даже подумала, что личный помощник никогда не отдыхает))
Teresa Olehnovich
Услуга «Личный помощник» — это не только дешевле, чем платить деньги каким-то непонятным посредникам или риэлторам, но и гарантированная ежедневная консультация от грамотного специалиста. Одним словом, всё очень понравилось.
Алина Василевская
Моя оценка 5! Нашли с личным помощником то, что нужно!! Удобно и безопасно. Отличный, проверенный сайт! Спасибо, Локалс!
Еленка Потапова
Искал с помощью услуги «Личный помощник». Сервис справился с поставленной перед ним задачей — найти мне жильё в короткие сроки (дедлайн 1,5 недели). Спасибо!
Dimas
У меня только положительные впечатления остались. Мне присылал варианты каждый день, иногда даже дважды. Всегда оперативно реагировал на мои пожелания. В итоге, так и сняли одну из предложенных квартир и очень довольны.
Любовь












