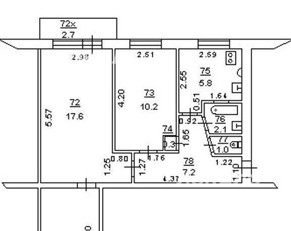
3-к кв. Ростовская область, Ростов-на-Дону просп. Шолохова, 292 (58.3 м²)
Не агентство.
Продаётся просторная квартира под ремонт. Окна выходят на обе стороны, квартира не угловая.
Район тихий, до центра 20 минут на общественном транспорте.
Сейчас в квартире никто не проживает, ключи на руках.
Особенности
Другие 3-х комнатные квартиры
3-к кв. Ростовская область, Ростов-на-Дону Днепропетровская ул., 1/77 (56.0 м²)
3-к кв. Ростовская область, Ростов-на-Дону просп. 40-летия Победы, 69/8 (60.0 м²)
3-к кв. Ростовская область, Ростов-на-Дону 2-я Киргизская ул., 97/3 (60.0 м²)
3-к кв. Ростовская область, Ростов-на-Дону ул. Варфоломеева, 79 (61.7 м²)
Последние добавленные апартаменты
1-к кв. Ростовская область, Ростов-на-Дону ул. Берберовская, 20 (36.0 м²)
Студия Ростовская область, Ростов-на-Дону Береговая ул., 73с2 (20.0 м²)
2-к кв. Ростовская область, Ростов-на-Дону ул. Еременко, 58/11 (48.0 м²)
1-к кв. Ростовская область, Ростов-на-Дону просп. 40-летия Победы, 63/17с3 (39.3 м²)
О нас говорят
Хорошая услуга «Личный помощник». За вами закрепляют менеджера, который подбирает для вас варианты, помогает с подписанием договора и проверкой квартиры. Константин оперативно отвечал на наши вопросы и подстраивался под возникающие в ходе поиска требования.
Ins Fairy
Нашел себе отличную квартиру в Мск на Локалс. В этот раз пользовался услугой Личный помощник; Каждый день мне присылали варианты и по моим ответам уточняли мои критерии. В итоге выбрали прямо то, что мне было надо!
Ilya Malov
Отличный сервис! Нужный вариант подобрали уже на следующий день после обращения. Документы с арендодателем я подписала в конце той же недели и сразу переехала. Квартира после ремонта, все новое, я — первый арендатор, до метро 15 минут пешком. Это потрясающе!
Maria Levkina
Поиски квартиры заняли ровно неделю, Андрей проверял все варианты и составлял подробное описание. Так же оказал помощь при подписании договора. И вот теперь, я снимаю квартиру без комиссии, от собственника, с хорошим ремонтом, в новом доме по приемлемой цене.
Dmitry Kovtun
Клиентоориентированность — на высшем уровне. И форма связи любая.. мне было удобно общаться через почту — не проблема: в будни и даже в выходные, и днем и ночью — постоянно на связи) В какой-то момент даже подумала, что личный помощник никогда не отдыхает))
Teresa Olehnovich
Услуга «Личный помощник» — это не только дешевле, чем платить деньги каким-то непонятным посредникам или риэлторам, но и гарантированная ежедневная консультация от грамотного специалиста. Одним словом, всё очень понравилось.
Алина Василевская
Моя оценка 5! Нашли с личным помощником то, что нужно!! Удобно и безопасно. Отличный, проверенный сайт! Спасибо, Локалс!
Еленка Потапова
Искал с помощью услуги «Личный помощник». Сервис справился с поставленной перед ним задачей — найти мне жильё в короткие сроки (дедлайн 1,5 недели). Спасибо!
Dimas
У меня только положительные впечатления остались. Мне присылал варианты каждый день, иногда даже дважды. Всегда оперативно реагировал на мои пожелания. В итоге, так и сняли одну из предложенных квартир и очень довольны.
Любовь












